ビッグテント/10m×6mアーチ型/ステージテント

取扱商品詳細

ビッグテント/10m×6mアーチ型/ステージテント
商品名ビッグテント/10m×6mアーチ型/ステージテント
商品番号2712
金額

1日150,000
2日187,500
3日225,000
4日243,750
5日262,500
6日281,250
7日300,000
※脚1m延長:1日+24,000円
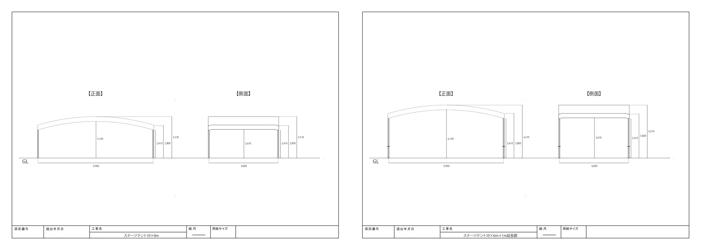
※画像は脚1m延長タイプです。

詳細

サイズ:W10000×D6000×H2410~2800mm
天幕カラー:白
設営撤去料金別途
ウエイト・アンカー別途
管理費:1日8時間拘束30,000~
諸費用別途(アンカー穴埋め作業等)
※ユニック車が入れない会場は設置出来かねます。
※焼き物・揚げ物などで使用する場合、別途クリーニング代のご請求となります。予めご了承ください。
 
ステージテントとして使用の場合…別途下記必要です。
・APステージ5間×3間(W9000×D5400mm)
・アルミステップ2段 2台
 
オプション品:ウエイト/20kg
オプション品:ウエイト/30kg
オプション品:ウエイト/80kg
 
※ウエイト・アンカーは料金に含まれておりません。オプション品を別途ご準備ください。
※テントの設営・撤去料金にウエイト・アンカーは含まれておりません。尚、平地での使用条件による算出となっております。
※弊社規定の風速計により、風速10m/s以上を観測した場合、やむなく撤去する場合がございます。
※自然災害・危険個所・他、現地状況により、お断りする場合もございます。
 
【テントレンタルのお客様へ】
近年、お客様の設置テント等による事故・トラブルが増えております。
弊社では、お客様による設営・撤去の作業時は、ヘルメット・手袋等の着用を推奨いたしております。
また、風速10mを越える環境下でご利用の場合、テント設置は推奨しておりません。
設置前の天気予報等を確認し、突風・強風などが想定される場合は、設置を控える。
またはウェイトの数量を増量してご利用いただくなどの調整をお願いいたします。
ご不明な点がございましたら、弊社まで事前にご相談くださいますようお願い申し上げます。


P.1_ステージテント10×6mノーマル図面 P.2_1m延長脚図面

2022_snsicon001

〒984-0015
宮城県仙台市若林区卸町2-11-9
TEL:022-236-0050
FAX:022-236-0070
MAIL:oroshimachi@bh-net.co.jp
営業時間

定休日:営業カレンダーはこちら


2022_snsicon001

〒984-0015
宮城県仙台市若林区卸町2-11-9
TEL:022-236-0050
FAX:022-236-0070
MAIL:oroshimachi@bh-net.co.jp
営業時間
お問い合わせ :10:00~12:00 / 13:15~17:30
商品出庫/入庫 :10:00~11:45 / 13:15~17:15
定休日:営業カレンダーはこちら